アパート 釜石市
物件詳細 --- detailsDETAILS
アパート ヴァンベール1階102号室
情報更新日:2026-04-14
インターネット無料!駐車場2区画無料の賃貸物件です!即入居可!
- 所在地
- 岩手県 釜石市 野田町4丁目
- 種別/間取り
- アパート/1LDK
- 月額賃料
- 62,000円/月
- 専有面積
- 42.23㎡
- バルコニー面積
- ─
- 共益費
- ─
- 管理費
- ─
- 敷金
- 1ヶ月 62,000円
- 礼金
- ─
本物件の内容や画像等は全て現況優先となります。
各画像は参考図となります。
| 交通機関 | JR釜石線 小佐野駅 まで徒歩16分 | ||
|---|---|---|---|
| 学区 | 市立小佐野小学校(1.5km)・市立釜石中学校(3.8km) | ||
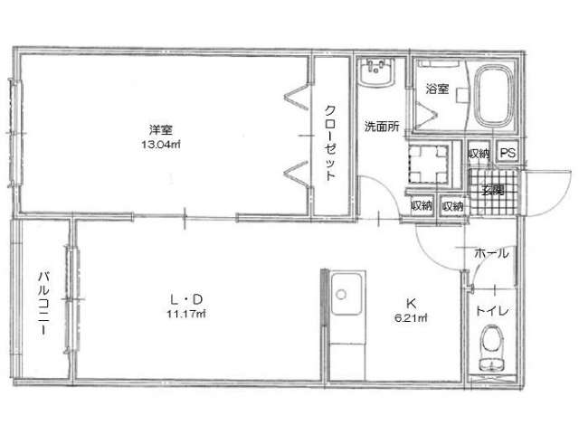
| 詳細間取 | 1LDK (洋7.8帖×1、LDK10.5帖) | ||
| 周辺施設 | コンビニ ローソン:260m、スーパー マイヤ:400m、ドラッグストア 薬王堂:230m | ||
| 駐車場 | 敷地内 無料 | 建物構造 | 木造 地上2階建 |
| 駐車場複数台 | 可1台まで | 主要採光方向 | 南西 |
| 仲介料 | 68,200円 (1ヶ月相当) | 周辺環境 | 三陸自動車道釜石中央ICまで2km |
| 保険又は共済 | 要加入 | 入居可能日 | 即入居可 |
| 保証金 | 築年月 | 平成28年3月 | |
| 権利金 | 取引態様 | 仲介 | |
| 保証会社 | 利用必須 アーク賃貸保証 総賃料+決済サービス料の80% | ||
| その他費用 | 決済サービス料/月:330円、退去後クリーニング費用(解約時精算):44,000円 | ||
| トイレ | 洋式 独立 水洗 暖房便座 洗浄機能付 | 風呂 | 有 シャワー有 追焚機能付 給湯式 |
| 設備 | 上水道設備(公営) 下水道設備 給湯(ガス)3箇所 洗面化粧台(独立)(シャワー付) LPガス ガスコンロ(2口) TV付インターホン エアコン ベランダ 下駄箱 駐輪場 洗濯機置場 システムキッチン 物置 網戸 カーテンレール 照明器具 TVアンテナ BSアンテナ インターネット無料 デジタルロック フローリング クローゼット 郵便受 | ||
| 備考 | 南西向きとなっています。物件の契約更新手続き、更新料・更新事務手数料はありません。 住宅補償保険は更新が必要になります。 普通賃貸借 | ||
| 取扱業者 |
かまいしアパートセンター 岩手県知事免許(3)第2454号 岩手県釜石市中妻町2丁目4-22 TEL:0193-27-6066 FAX:0193-27-6067 (公社)全日本不動産協会会員 東北地区不動産公正取引協議会加盟事業者 |
||




