戸建 釜石市
物件詳細 --- detailsDETAILS
戸建 ピエールリジェールⅡC号室
情報更新日:2026-02-28
玄関前の駐車区画2台分無料でご利用いただけます!
- 所在地
- 岩手県 釜石市 平田第2地割
- 種別/間取り
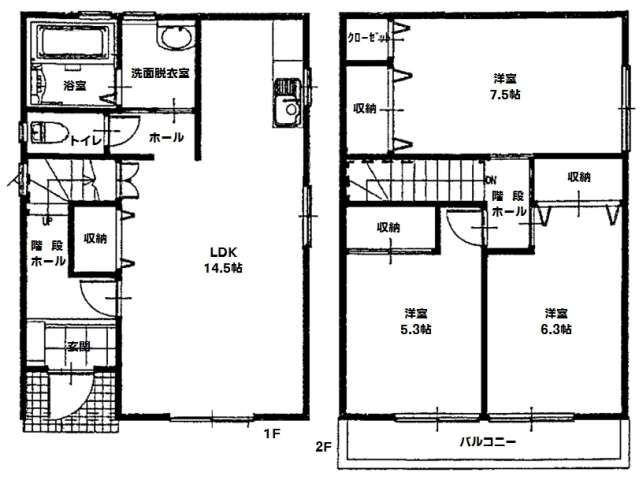
- 戸建/3LDK
- 月額賃料
- 74,000円/月
- 専有面積
- 82.8㎡
- バルコニー面積
- ─
- 共益費
- 2,500円/月
- 管理費
- ─
- 敷金
- 1ヶ月 74,000円
- 礼金
- ─
本物件の内容や画像等は全て現況優先となります。
各画像は参考図となります。
| 交通機関 | 三陸鉄道リアス線 平田駅 まで徒歩25分 | ||
|---|---|---|---|
| 学区 | 市立平田小学校(2.3km)・市立大平中学校(4km) | ||
| 詳細間取 | 3LDK (洋7.5帖×1、洋6.3帖×1、洋5.3帖×1、LDK14.5帖) | ||
| 周辺施設 | 釜石平田郵便局:2200m、スーパー みずかみ:2300m | ||
| 駐車場 | 敷地内 無料 | 建物構造 | その他 (2×4造) 地上2階建 |
| 駐車場複数台 | 可1台まで | 主要採光方向 | 南東 |
| 仲介料 | 81,400円 | 周辺環境 | |
| 保険又は共済 | 要加入 | 入居可能日 | 2026/04/中旬 |
| 保証金 | 築年月 | 平成24年5月 | |
| 権利金 | 取引態様 | 仲介 | |
| 保証会社 | 利用必須 アーク賃貸保証 総賃料+決済サービス料の80% | ||
| その他費用 | 決済サービス料/月:330円、退去時クリーニング費用(解約時精算):71,500円 | ||
| トイレ | 洋式 独立 水洗 暖房便座 洗浄機能付 | 風呂 | 有 シャワー有 追焚機能付 給湯式 |
| 設備 | 上水道設備(公営) 下水道設備 給湯(ガス)3箇所 洗面化粧台(独立)(シャワー付) LPガス TV付インターホン エアコン バルコニー 下駄箱 システムキッチン 物置 網戸 カーテンレール TVアンテナ BSアンテナ フローリング クローゼット 郵便受 エアコンはLDKと2階北洋室に設置 | ||
| 備考 | 東南向きとなっています。2面採光。ガステーブル(プロパン用)をご用意願います。 物件の契約更新手続き、更新料・更新事務手数料はありません。 住宅補償保険は更新が必要になります。 普通賃貸借 | ||
| 取扱業者 |
かまいしアパートセンター 岩手県知事免許(3)第2454号 岩手県釜石市中妻町2丁目4-22 TEL:0193-27-6066 FAX:0193-27-6067 (公社)全日本不動産協会会員 東北地区不動産公正取引協議会加盟事業者 |
||


